Gerçek
Yeni yapı MK Takım
MK Gilze'nin günlük gelişimi dışında sessizce oturmak Machines Kennes'in geninde değil, şirketimiz MK Tooling'de de güzel bir gelişme var
Harika haberler (www.mktooling.nl)
Aralık 2018'de MK Tooling'ı genişletmek için bir Go verildi.
Makine parkımıza yeni ve güzel bir makinenin eklenmesi dışında, tamamen yeni bir bina da olacak. Bu yeni bina MK Gilze'ye daha yakın olacak. Bu, MK Gilze'nin işaret odası ile MK Tooling'in işleme merkezleri arasında kısa hatların olmasını kolaylaştırır. Bu yeni binanın 2019 yazında tamamlanması gerekecek.
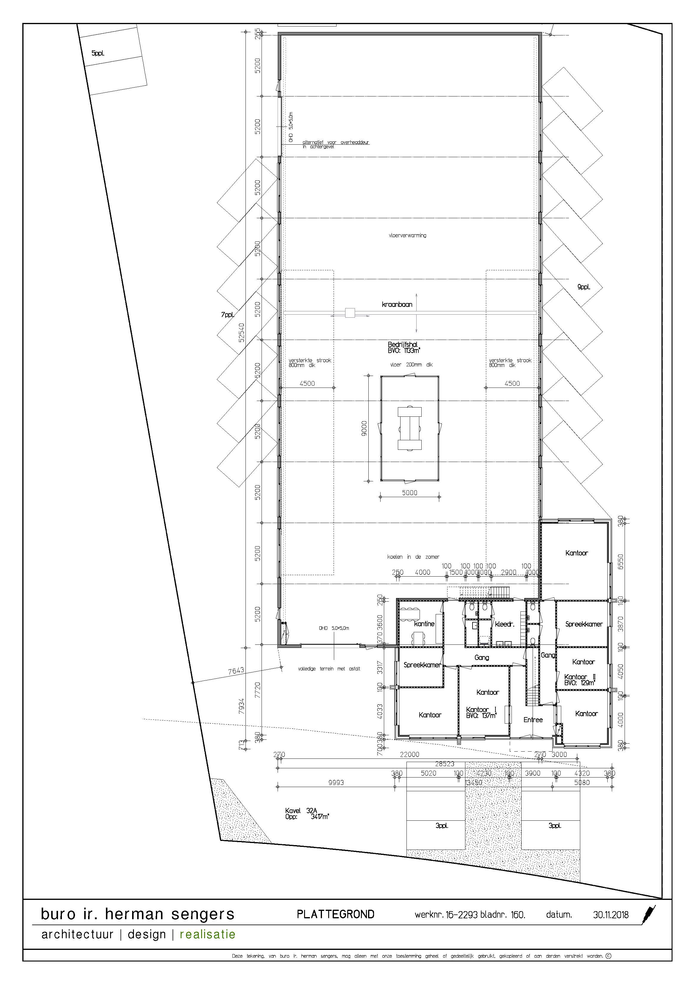
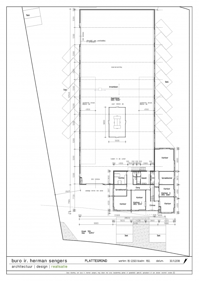
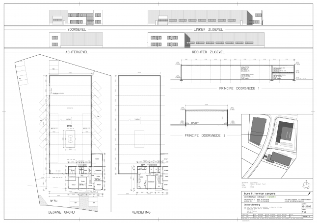
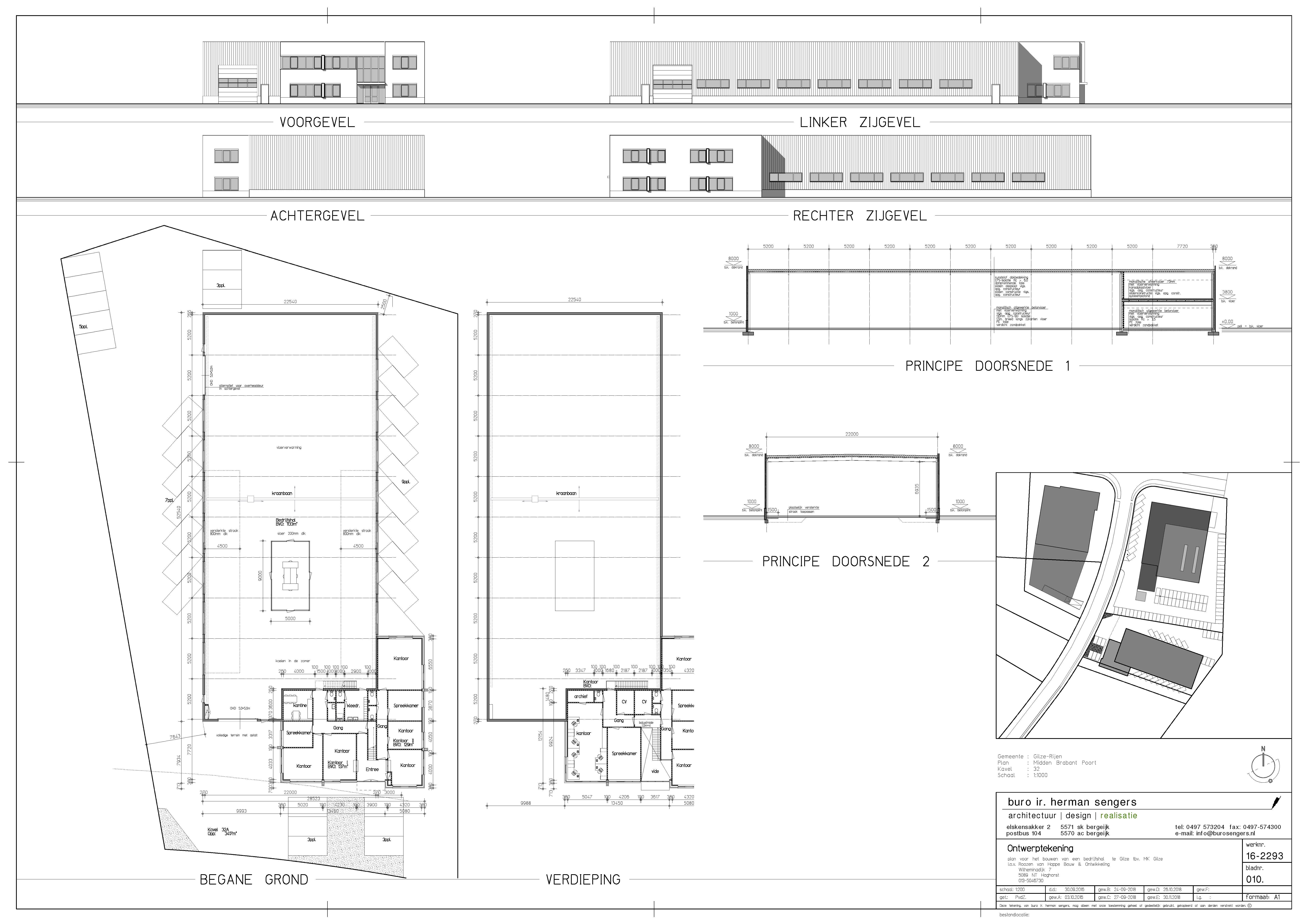
Aşağıda yeni binanın ilk çizimlerini görebilirsiniz. Web sitemiz ve Facebook ve LinkedIn gibi sosyal medya kanalları aracılığıyla, ilgilenen herkesi güncel tutacağız.
