NEA
Νέα κατασκευή MK Tooling
Η καθιστική ησυχία δεν είναι στα γονίδια των μηχανών Kennes έξω από την καθημερινή ανάπτυξη στο MK Gilze υπάρχει επίσης μια ωραία ανάπτυξη στην θυγατρική μας εταιρεία MK Tooling
Μεγάλα νέα (www.mktooling.nl)
Τον Δεκέμβριο του 2018 δόθηκε ένα Go για την επέκταση του MK Tooling.
Εκτός από το γεγονός ότι ένα όμορφο καινούριο μηχάνημα προστίθεται στο μηχανοστάσιο μας, θα υπάρχει και ένα πλήρες νέο κτίριο. Αυτό το νέο κτίριο θα δημιουργηθεί πιο κοντά στο MK Gilze. Αυτό διευκολύνει την ύπαρξη κοντών γραμμών μεταξύ της αίθουσας σήμανσης του MK Gilze και των κέντρων κατεργασίας του MK Tooling. Το νέο αυτό κτίριο θα πρέπει να ολοκληρωθεί γύρω στο καλοκαίρι του 2019.
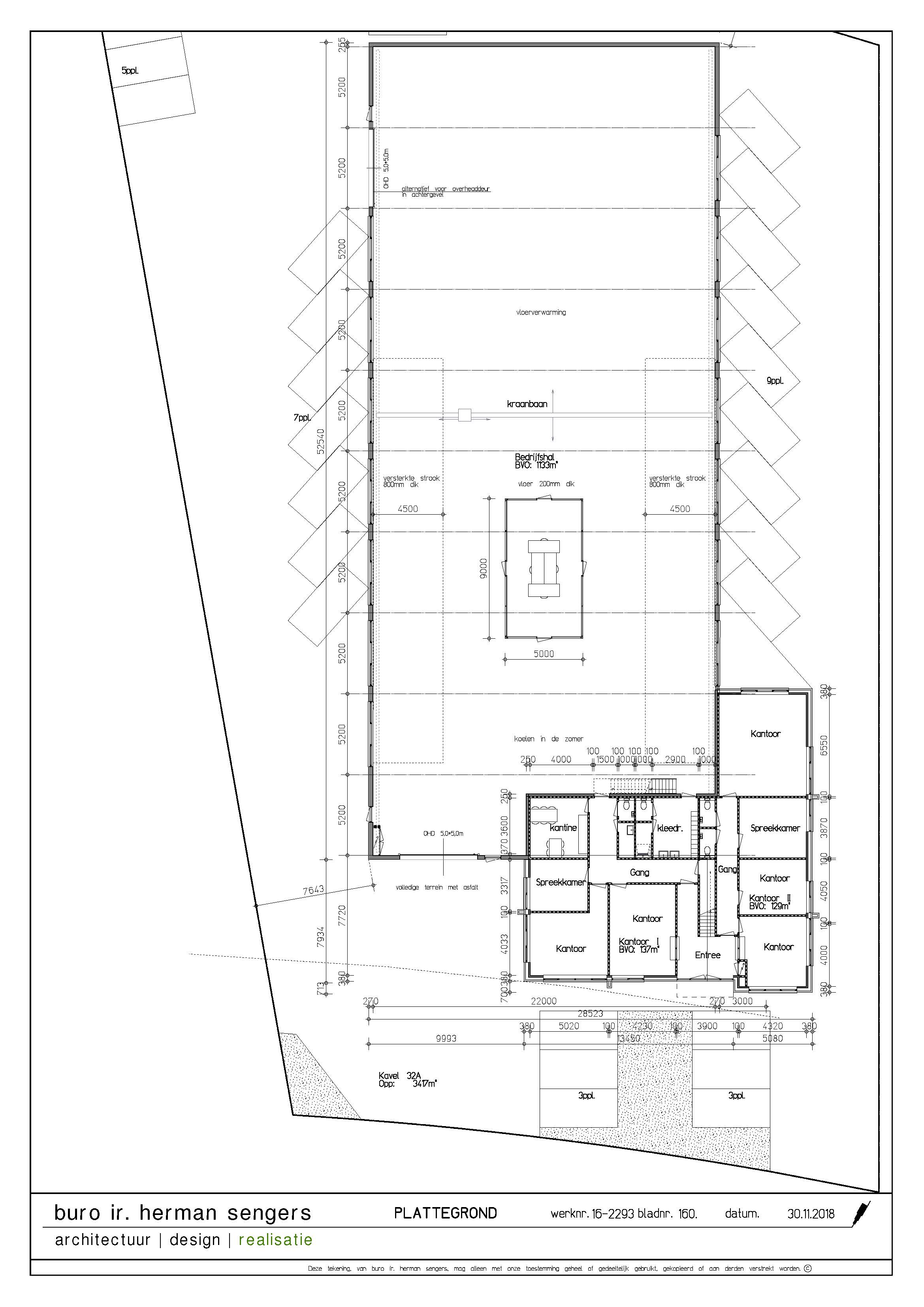
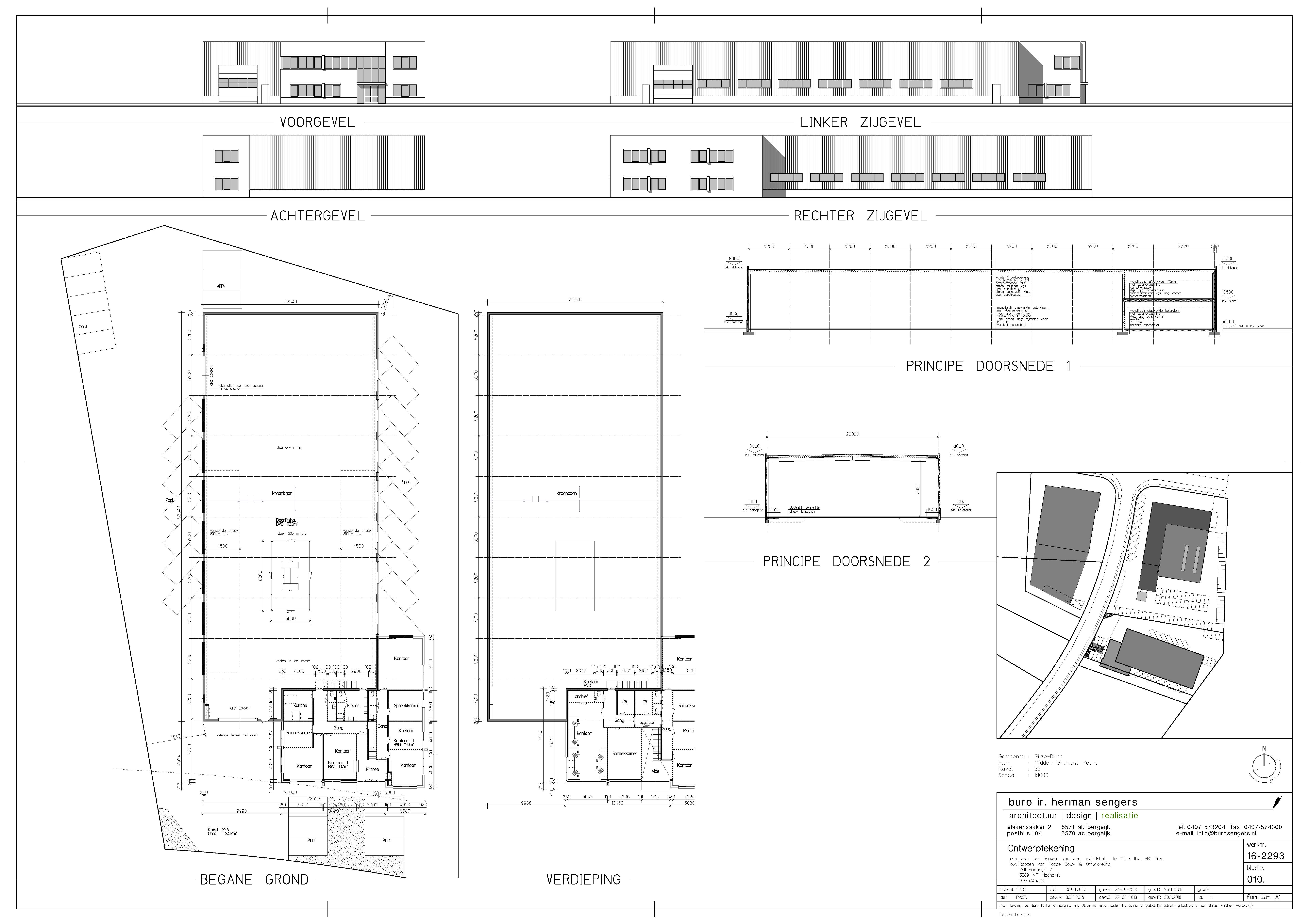
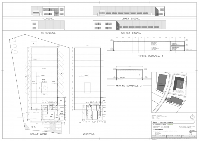
Παρακάτω μπορείτε να δείτε τα πρώτα σχέδια του νέου κτιρίου. Μέσα από την ιστοσελίδα μας και τα κανάλια κοινωνικών μέσων όπως το Facebook και το LinkedIn, θα ενημερώνουμε όλους τους ενδιαφερόμενους.
