Rzeczywisty
Nowa konstrukcja MK Tooling
Spokojne siedzenie nie jest w genach Maszyn Kennesa poza codziennym rozwojem w MK Gilze, jest również przyjemny rozwój w naszej córce MK Tooling
Świetna wiadomość (www.mktooling.nl)
W grudniu 2018 roku wydano Go za rozszerzenie MK Tooling.
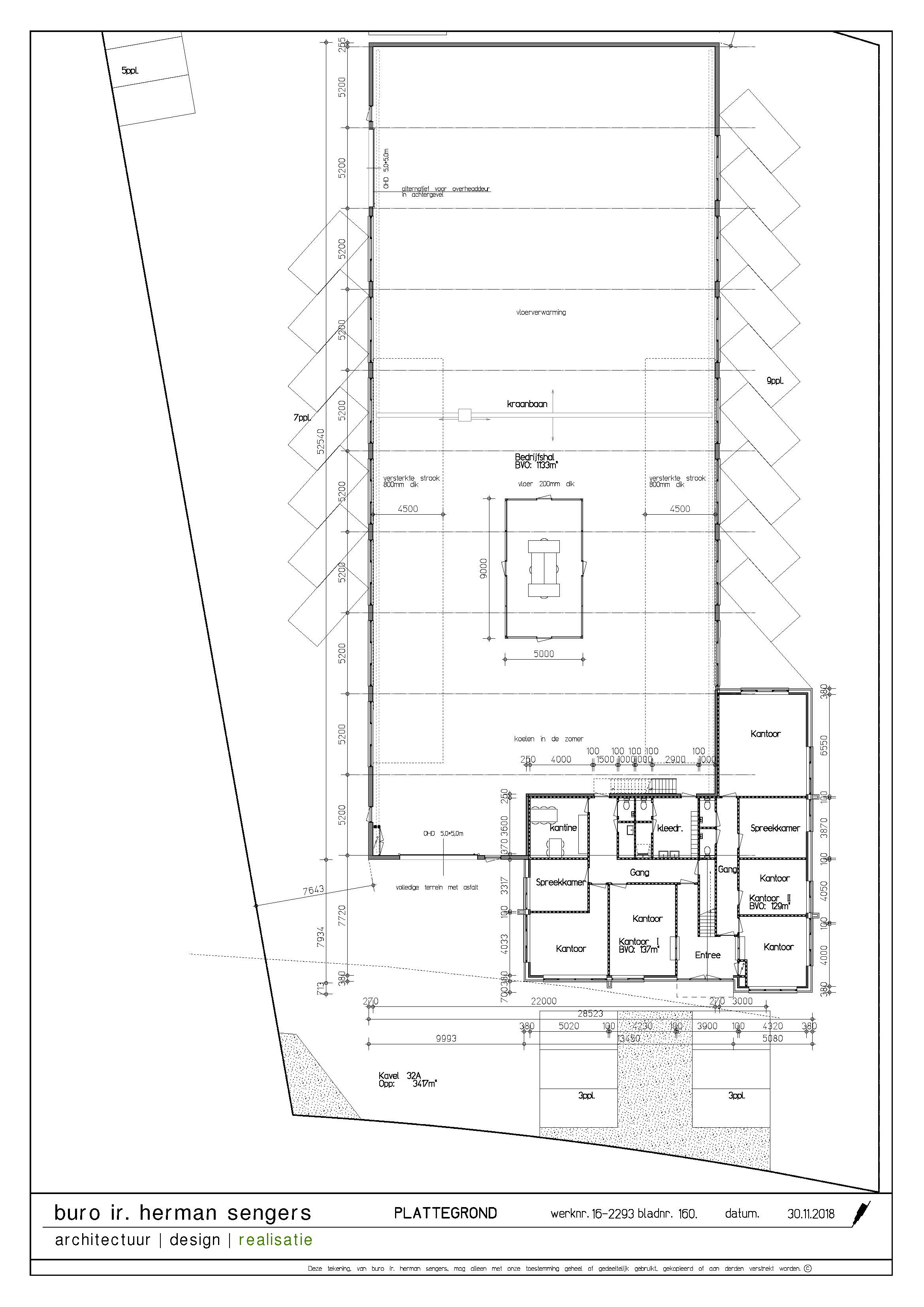
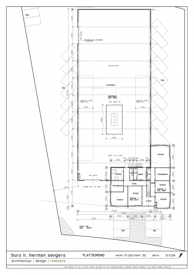
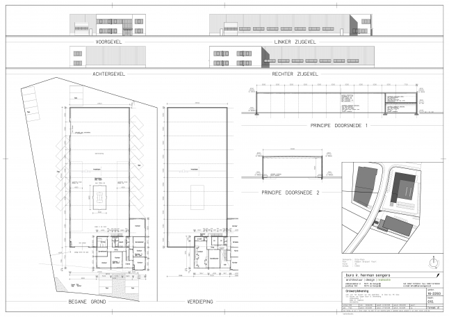
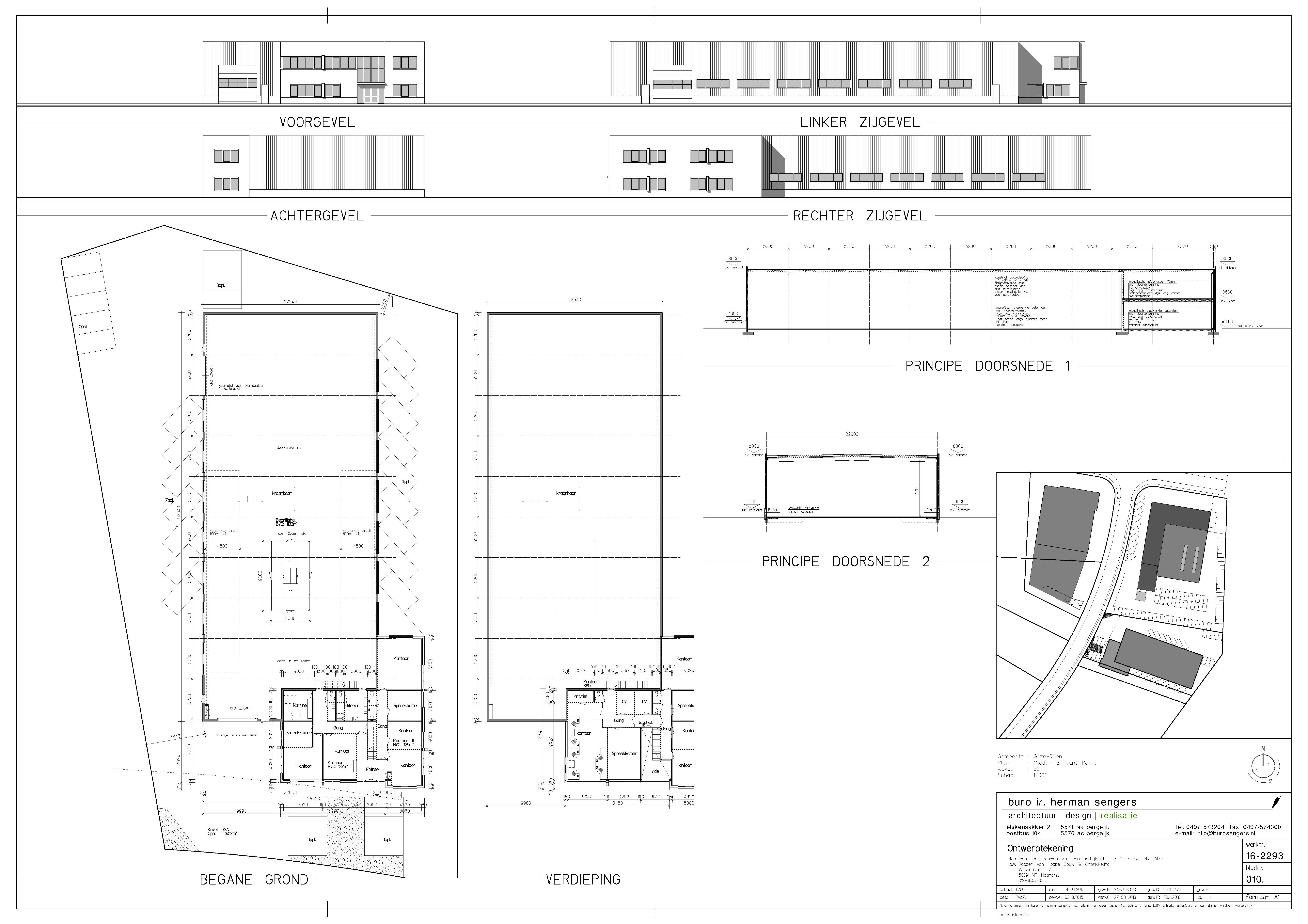
Oprócz tego, że do naszego parku maszynowego dodawana jest piękna nowa maszyna, powstanie również zupełnie nowy budynek. Ten nowy budynek powstanie bliżej MK Gilze. Ułatwia to tworzenie krótkich linii między pomieszczeniem do znakowania MK Gilze a centrami obróbczymi MK Tooling. Ten nowy budynek będzie musiał zostać ukończony około lata 2019 r.
Poniżej możesz zobaczyć pierwsze rysunki nowego budynku. Za pośrednictwem naszej strony internetowej i kanałów mediów społecznościowych, takich jak Facebook i LinkedIn, będziemy na bieżąco informować wszystkich zainteresowanych.
