Aktuell
Neues MK-Werkzeug
Still sitzen ist nicht in den Genen von Machines Kennes. Außerhalb der täglichen Entwicklung bei MK Gilze gibt es auch eine schöne Entwicklung bei unserer Tochterfirma MK Tooling
Tolle Neuigkeiten (www.mktooling.nl)
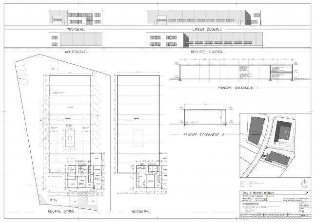
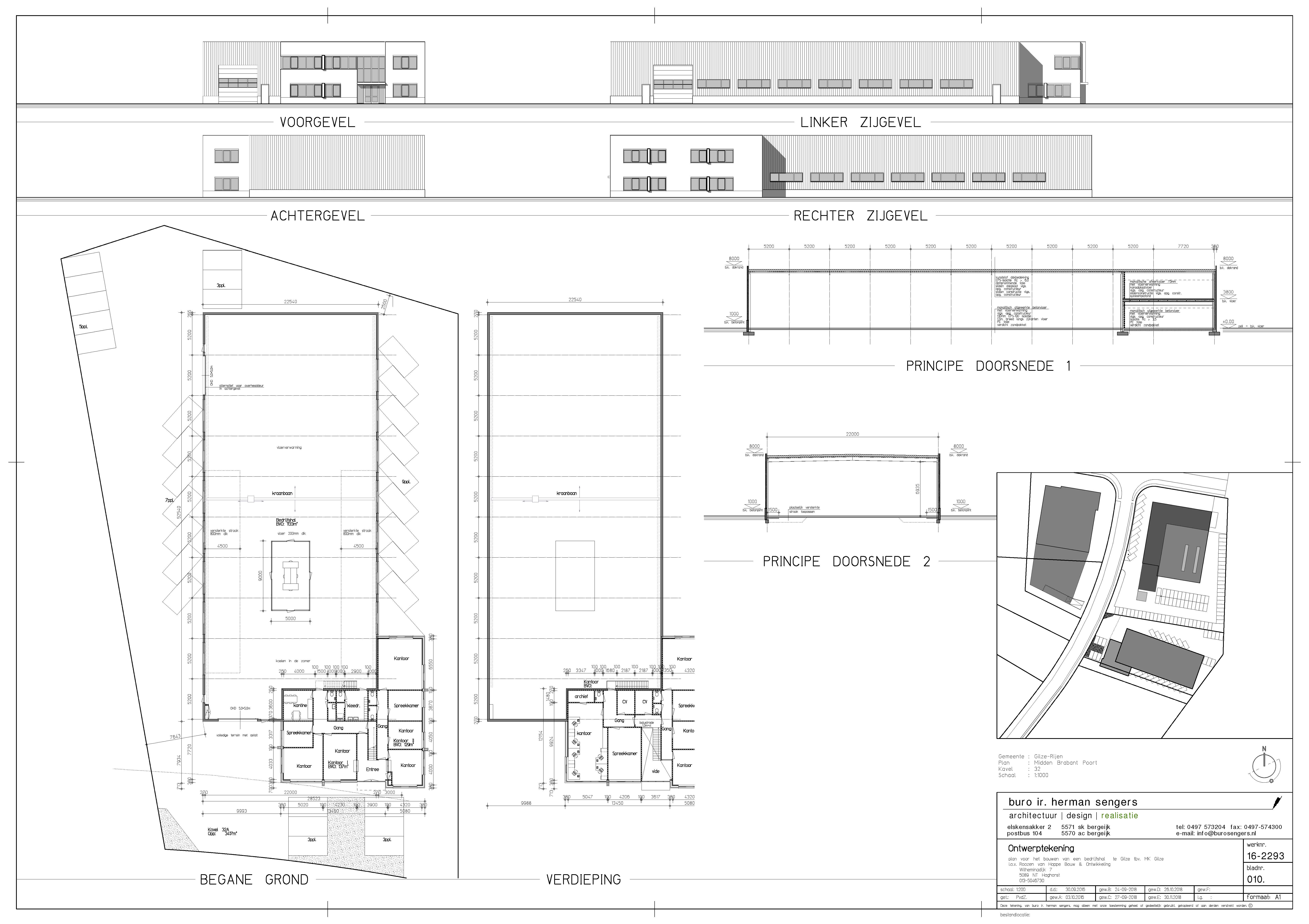
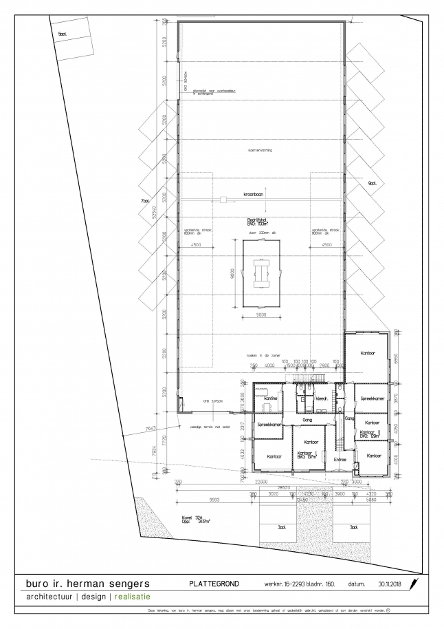
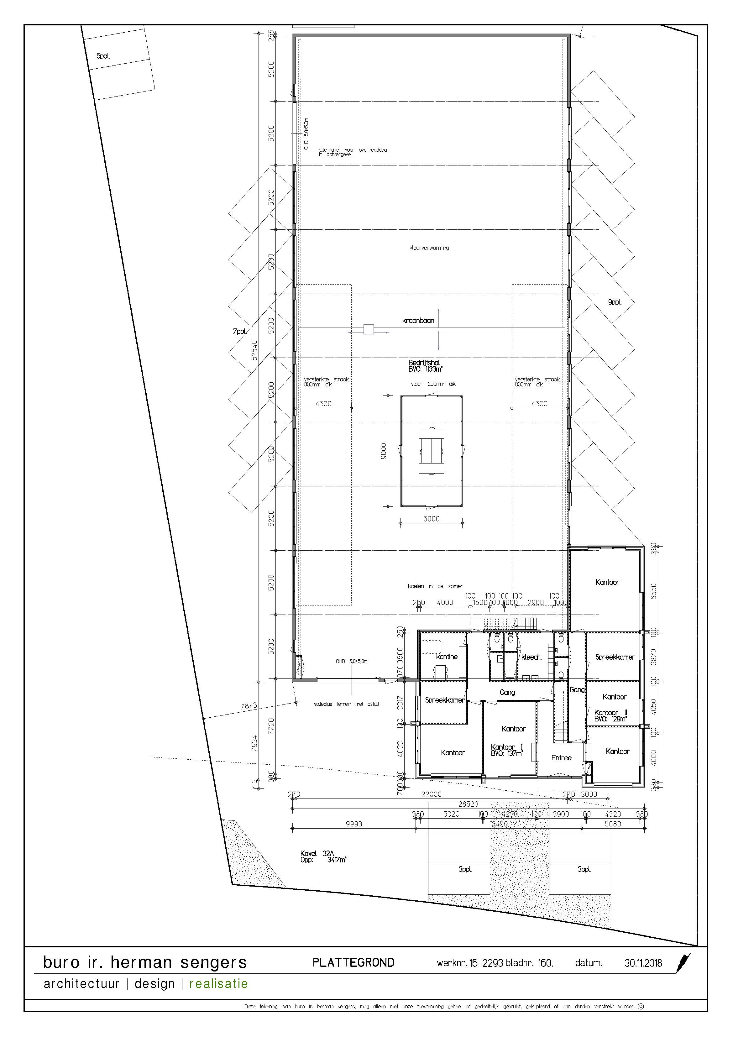
Im Dezember 2018 wurde ein Go für die Erweiterung von MK Tooling vergeben.
Abgesehen davon, dass unser Maschinenpark um eine schöne neue Maschine erweitert wird, wird es auch einen kompletten Neubau geben. Dieses neue Gebäude wird näher an MK Gilze angelegt. Dies macht es einfacher, kurze Linien zwischen dem Zeichenraum von MK Gilze und den Bearbeitungszentren von MK Tooling zu haben. Dieses neue Gebäude muss im Sommer 2019 fertiggestellt werden.
Unten sehen Sie die ersten Zeichnungen des neuen Gebäudes. Über unsere Website und Social-Media-Kanäle wie Facebook und LinkedIn werden wir alle Interessierten auf dem Laufenden halten.
Feedback verzenden
Geschiedenis
Opgeslagen
Community
