фактический
Новое строительство МК Tooling
Сидеть спокойно не в генах Machines Kennes за пределами повседневной разработки в MK Gilze, также есть приятное развитие в нашей дочерней компании MK Tooling
Хорошие новости (www.mktooling.nl)
В декабре 2018 года был дан Go для расширения MK Tooling.
Помимо того, что в наш машинный парк добавляется красивая новая машина, также будет полностью новое здание. Это новое здание будет создано ближе к М. К. Гильзе. Это облегчает создание коротких линий между вывеской MK Gilze и обрабатывающими центрами MK Tooling. Это новое здание должно быть закончено летом 2019 года.
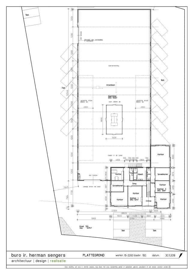
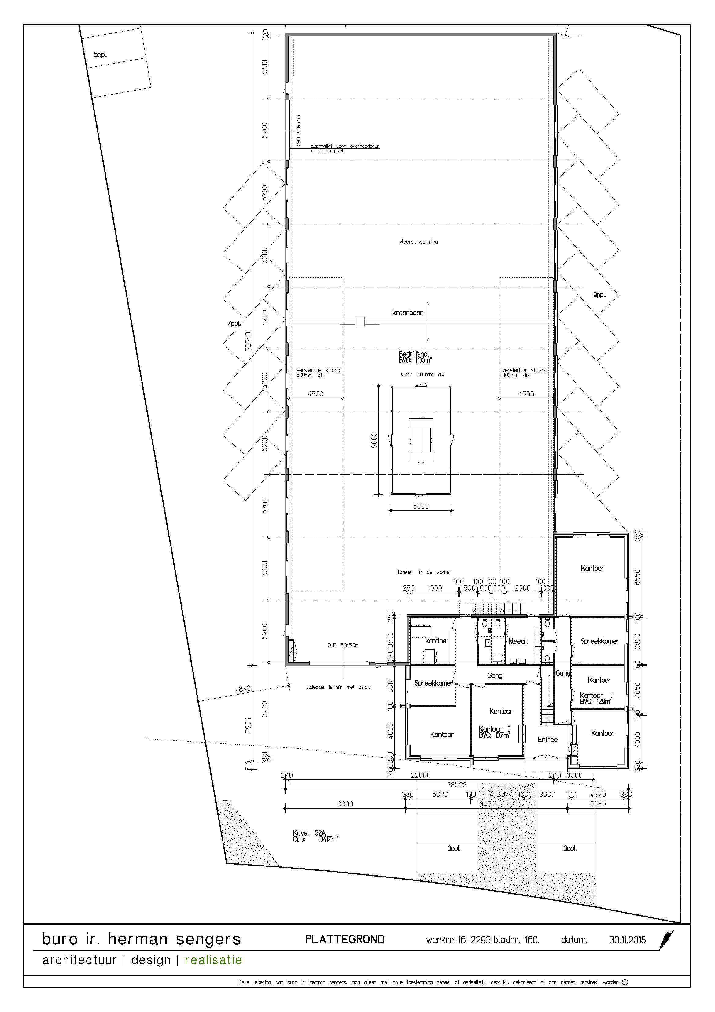
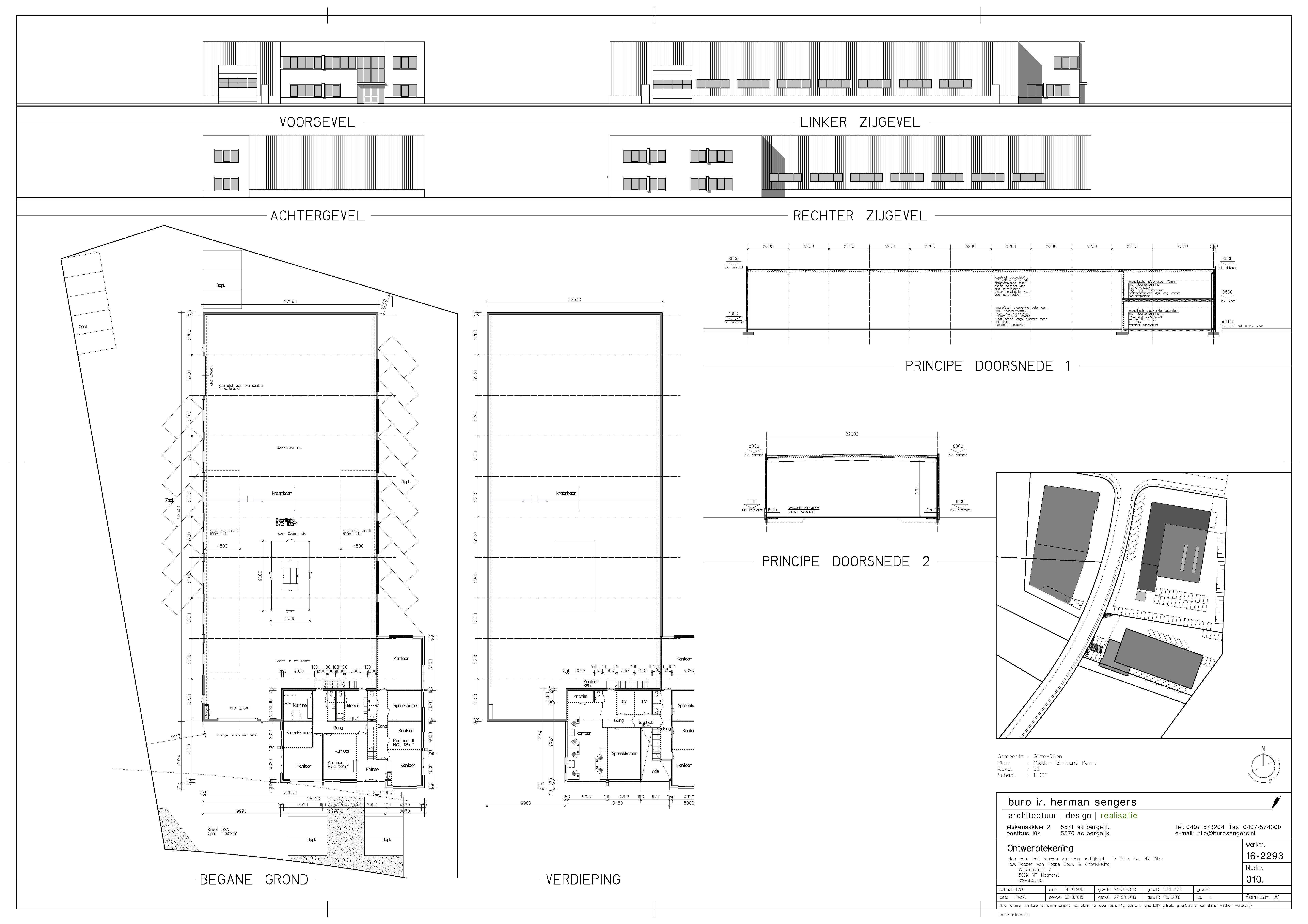
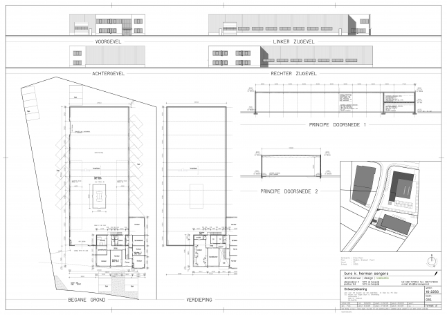
Ниже вы можете увидеть первые чертежи нового здания. Через наш веб-сайт и социальные сети, такие как Facebook и LinkedIn, мы будем держать всех в курсе всех событий.
